Capannone in affitto

Trenzano, Via G. Marconi
€ 600 / mese
1 locale 1 locale
250 Mq 250 Mq
2 bagni 2 bagni

Capannone in affitto

Trenzano, Via G. Marconi

Descrizione annuncio

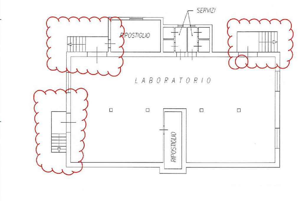
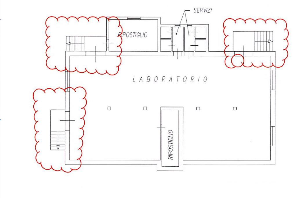
Proponiamo in locazione capannone ad uso laboratorio di 250 mq al piano interrato con accesso esclusivamente pedonale sito nel comune di Trenzano, più precisamente in Via Marconi.

La soluzione potrebbe essere adatta ad attività artigianali leggere o creative come laboratori di sartoria, falegnameria di precisione, restauro e design di arredi, officine per biciclette o strumenti musicali, studi fotografici o grafici, piccoli atelier d’arte, produzione di oggetti handmade, magazzini per e-commerce con preparazione ordini, oppure spazi condivisi per professionisti e artigiani locali che necessitano di un ambiente di lavoro flessibile e funzionale.

L’immobile è così caratterizzato:

- Altezza 2,7 m

- 1 locale con pilastri

- 3 accessi carrai solo pedonali

- 3 portoni di altezza 2 m

- 2 servizi igienici da ristrutturare

- Privo di impianti

LIBERO SUBITO

Il comune di Trenzano sorge sulla pianura occidentale bresciana, nella parte centro-meridionale della provincia, ed è compresa tra i comuni di Rovato, Berlingo, Maclodio, Brandico, Corzano, Comezzano-Cizzago e Castrezzato, la cui economia si fonda sulla positiva coesistenza di attività agricole, commerciali e industriali.

Mostra tutto

Nelle vicinanze

Ricariche auto elettriche Ricariche auto elettriche
Carrozzeria Grazioli
460 m
Ristoranti Ristoranti
Agriturismo La Conta
1,7 Km
Agriturismo & Fattoria didattica Le Risorgive
2,3 Km
Mostra tutto

Caratteristiche

Rif.:
61132283
Piano:
Seminterrato di 2
Totale piani:
2
Condizionamento:
Assente
Ascensore:
No
Riscaldamento:
Assente
Mostra tutto
Prezzo Prezzo
€ 600 / mese
Spese annue Spese annue
€ 0

Altre caratteristiche

Descrizione dei locali
Bagno Con Finestra

Classe Energetica

Questo immobile è esente da classe energetica
Anno di costruzione:
1990
Riscaldamento:
Assente

Ti interessa visionare l'immobile?

Fissa un appuntamento  Fissa un appuntamento

Richiedi informazioni

Clicca su Leggi per aprire l'informativa
* Questi campi sono obbligatori
Affiliato
Industriale Brescia Sud Srl
Viale Sandro Pertini, 39 25010 San Zeno Naviglio (BS)

Il nostro staff


  • Claudio Valecci
    Affiliato

  • Niccolò Bornati
    Collaboratore

  • Nicola Ollargiu
    Collaboratore

  • Francesca Lanzini
    Affiliata

  • Elisa Migliorati
    Coordinatrice

  • Marco Muzzi
    Affiliato
Viale Sandro Pertini, 39 25010 San Zeno Naviglio (BS)
Zona: San Zeno-Borgosatollo-Poncarale-Bagnolo Mella-Flero
Mostra su mappa
Affiliato
Industriale Brescia Sud Srl
Viale Sandro Pertini, 39 25010 San Zeno Naviglio (BS)

2026 Tecnocasa Franchising S.p.A. - P. IVA 08365160152 - Via Monte Bianco 60/A 20089 Rozzano (MI). Ogni agenzia ha un proprio titolare ed è autonoma. Privacy policy | Policy utilizzo | Cookie policy